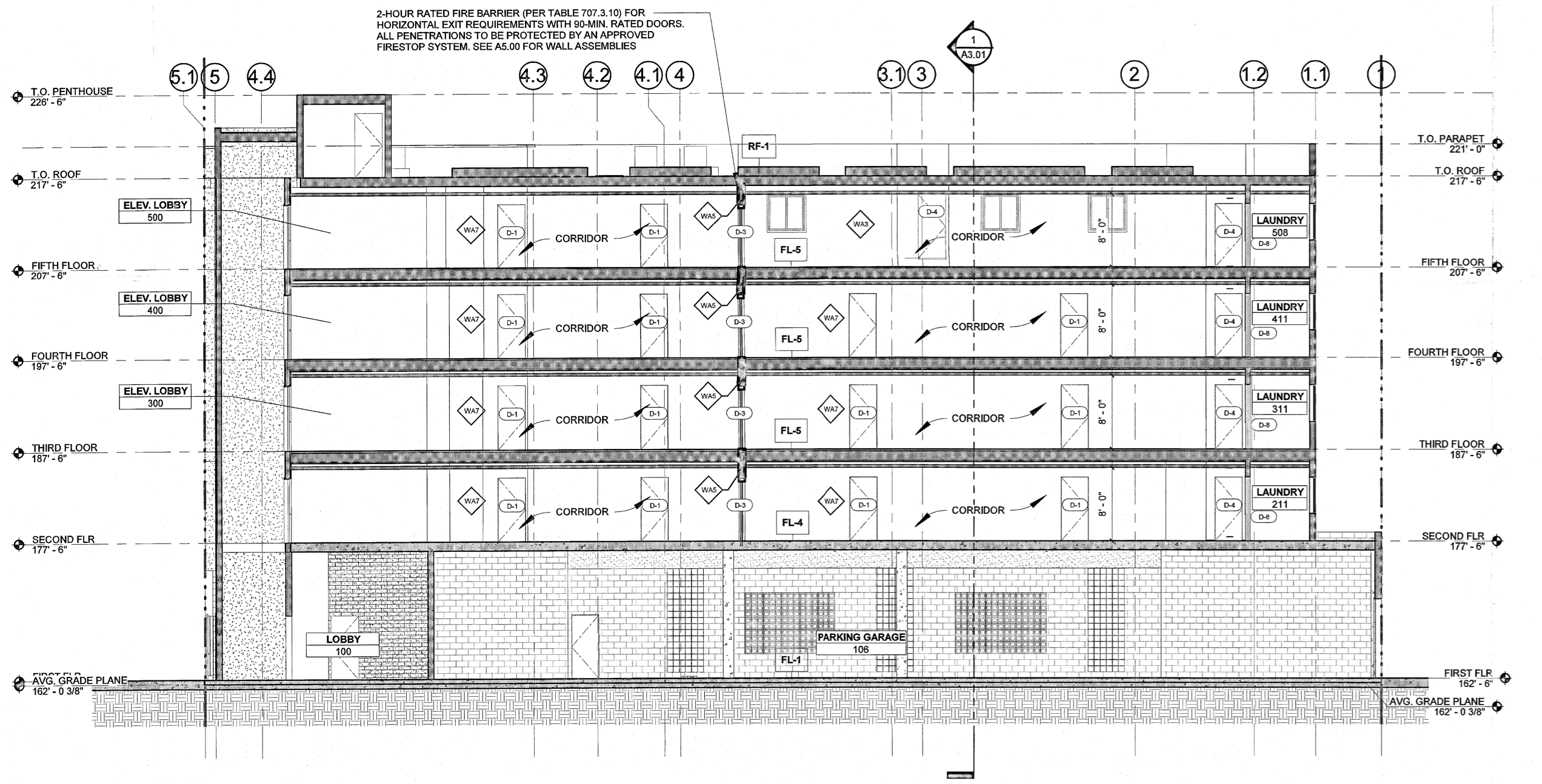
Construction activity is progressing at 4429 South Vermont Avenue, where a new five-story apartment building is rising on a compact parcel in South Los Angeles. The project occupies a corner lot just south of Vernon Avenue and is being developed as a fully residential structure with on-site parking at ground level.
The project is being developed by Haroni Investments and designed by John Kaliski Architects.
Plans call for 34 one-bedroom apartments organized across four residential floors above a ground-floor level containing parking and building access. Parking is provided for 18 vehicles within an enclosed garage, with a residential lobby positioned along the street frontage. Above the parking level, the building is arranged with a consistent residential floor plate, reflecting a standardized mid-rise apartment typology suited to small urban lots.

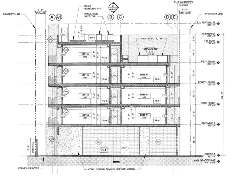
4429 South Vermont Avenue Section 2 via John Kaliski Architects
Section drawings show a double-loaded corridor layout serving units on each floor, with repeated unit configurations stacked vertically. Floor-to-floor heights are consistent across the residential levels, and circulation is consolidated to maximize unit yield within the building envelope. The top residential level is set below a flat roof, above which mechanical equipment and rooftop elements are screened from view.
The roof level includes a shared outdoor terrace measuring approximately 578 square feet, with planter areas integrated along the perimeter. Mechanical equipment, condenser units, and solar infrastructure are located on the roof and set back behind parapet walls, maintaining a uniform roofline when viewed from the street.
Project approvals include Transit Oriented Communities incentives, which allow the five-story configuration and reduced parking in exchange for the inclusion of four deed-restricted affordable units designated for extremely low-income households. When completed, the building will add a modest-scale residential infill project to the Vermont Avenue corridor.
Subscribe to YIMBY’s daily e-mail
![]()
Follow YIMBYgram for real-time photo updates
Like YIMBY on Facebook
Follow YIMBY’s Twitter for the latest in YIMBYnews


Be the first to comment on "A Five-Story Apartment Building Advances on a Compact Lot at 4429 South Vermont Avenue"