A new small-lot housing project is underway at 17719 West Kingsbury Street in Granada Hills, where developer Kingsbury Enterprises LLC aims to replace a 1940s single-family home with a row of eight modern homes. The site lies just southwest of the intersection of Chatsworth Street and White Oak Avenue, in an inner-suburban block now targeted for incremental densification.
Planning records show the project will deliver eight detached, three-story homes, each offering two bedrooms, three bathrooms, and a ground-level two-car garage. The application, filed with the Los Angeles Department of City Planning, cites state statute SB 684. It streamlines approval for small-lot subdivisions to pursue a more efficient residential format rather than traditional single-family zoning constraints.
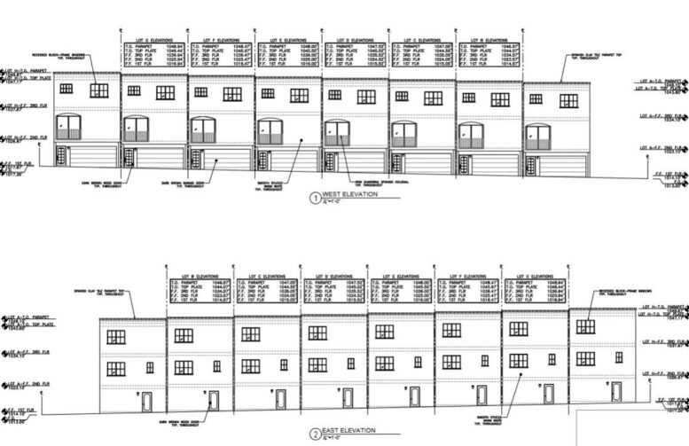
Architect Pagana’s submitted elevations depict a unified building front with clean horizontal bands, flush balconies, and a material palette of warm and neutral tones. Ground-level garages are recessed behind landscaped entries, while the upper floors present a simplified yet refined façade rhythm that aligns with the existing residential street scale.
The site falls within the Granada Hills-Knollwood Community Plan area, where the City is increasingly permitting modest-scale infill to take advantage of under-used lots in low-density neighborhoods. By using SB 684, the subdivision model reduces project approvals to a ministerial process, enabling swifter turnaround and fewer entitlements than conventional multi-unit redevelopments.
The proposal extends recent infill trends in the surrounding stretch, just a few blocks west of Chatsworth Street & Encino Avenue, where new housing has replaced older low-rise commercial uses. With eight refreshed homes, the Kingsbury Street project illustrates how infill can be subtle, neighborhood-scaled, and policy-enabled while still contributing to the housing supply.
Should approvals proceed smoothly, construction at 17719 W. Kingsbury Street would mark one of the first SB-684-enabled small-lot schemes in north Los Angeles, advancing the neighborhood’s transition into a diversified residential corridor.
Subscribe to YIMBY’s daily e-mail
![]()
Follow YIMBYgram for real-time photo updates
Like YIMBY on Facebook
Follow YIMBY’s Twitter for the latest in YIMBYnews


While it’s great that LA is getting some row houses, its charmless lowest common denominator designs like this that make them unwelcome. 5 windows per unit? No porches? The urban poor of the 19th century had better than this.