Plans filed with the City of Santa Monica outline a large-scale residential redevelopment at 1633 26th Street, where a new eight-story apartment building is proposed to replace existing improvements near the city’s Water Garden employment center.
Project materials describe a residential program totaling 353 apartments, arranged above a two-level subterranean parking structure designed to accommodate 443 vehicles. In addition to housing, the proposal includes approximately 2,400 square feet of ground-floor commercial space, maintaining an active street-level component along 26th Street.

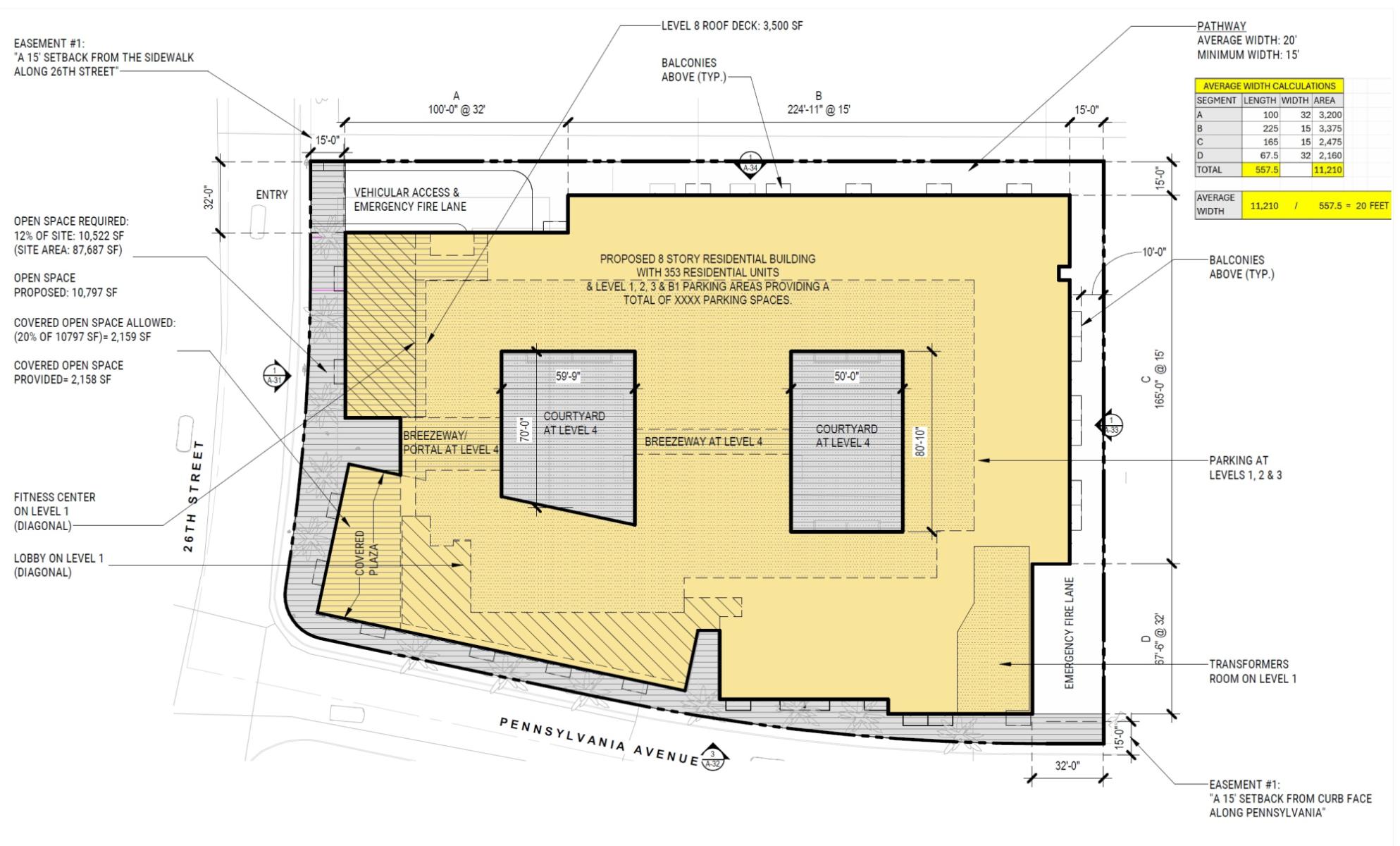
1633 26th Street Site Plan via AC Martin
A portion of the residential units would be reserved as income-restricted housing. Plans indicate that 36 apartments would be designated for moderate-, low-, and very low-income households, allowing the project to utilize California’s state density bonus provisions. These incentives permit increased residential capacity beyond base zoning limits in exchange for on-site affordable housing.
The architectural design for the project is attributed to AC Martin, which remains listed as the project architect under the revised application. Drawings depict a podium-style residential building organized around two internal courtyards, a configuration intended to introduce daylight and ventilation into the residential floors above the parking podium. Exterior elevations show a restrained façade composition with stucco finishes, balconies, and a regular window pattern.

1633 26th Street via AC Martin
The proposed redevelopment would transition the 26th Street site to a predominantly residential use, replacing earlier concepts and reflecting continued interest in housing development within a district historically dominated by office and commercial buildings. If approved, the project would add several hundred new apartments to this portion of Santa Monica while retaining limited neighborhood-serving retail at ground level.
Subscribe to YIMBY’s daily e-mail
![]()
Follow YIMBYgram for real-time photo updates
Like YIMBY on Facebook
Follow YIMBY’s Twitter for the latest in YIMBYnews






Be the first to comment on "Updated Eight-Story Apartment Proposal Filed for 1633 26th Street in Santa Monica"