Red Oak Investments’ overhaul of the A-1 Trailer Park has cleared the Los Angeles City Planning Commission, setting up a full-block, mixed-use community on the south edge of Harbor City. The approved plan is designed by VTBS Architects. It organizes 354 apartments and a small 1,500-square-foot retail space around a pair of interior courtyards, with a wrapped, podium garage at the core. Red Oak Investments, based in Irvine, is listed as the developer.
Massing along Pacific Coast Highway (PCH) is broken into offset volumes with inset balconies and terraces; the corner at PCH and Frampton Avenue is carved out for a public plaza and lobby frontage, improving the pedestrian edge where auto-centric lots dominate today.

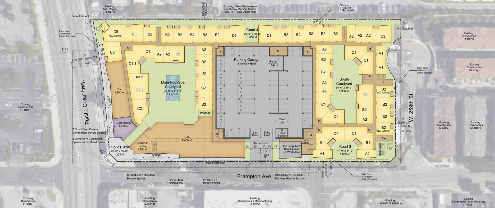
1280 Pacific Coast Highway Plan via VTBS Architects
Site drawings show a primary courtyard scaled for a pool and shared outdoor rooms, while a second, more intimate court serves the eastern wing. A modest rooftop terrace faces the highway, and long linear stoops and planters stitch the ground floor to the sidewalk. The garage is stacked at mid-block to keep most parking out of view, with resident bike storage adjacent to the entry.
As a condition of its density-bonus approvals, 42 homes will be recorded as very low-income. The project features a one-for-one replacement of the existing mobile homes on site. Current residents who qualify for the income-restricted apartments will receive a right of return, along with relocation and financial assistance outlined in the staff report.
The project reorients a deep parcel into a porous block: two courtyards bring light and air to the middle of the site, new storefront glass activates the PCH frontage, and the corner plaza creates a neighborhood front porch. Materials in renderings favor a crisp, contemporary palette expressed in white and charcoal volumes paired with warm accents.
The project’s design emphasizes on replacing an aging, low-intensity use with a courtyard housing model that adds street life, protected open space, and income-restricted homes next to daily bus service on the highway corridor.
Subscribe to YIMBY’s daily e-mail
![]()
Follow YIMBYgram for real-time photo updates
Like YIMBY on Facebook
Follow YIMBY’s Twitter for the latest in YIMBYnews






This is a good design for the PCH frontage. The courtyard housing model for the benefits of the environment and need for more housing in that area. Hotel keys even more so.