A fully affordable housing development has been proposed for 4532 West Edgewood Place in Los Angeles’ Mid-Wilshire neighborhood, where plans call for replacing a single-family residence with a four-story apartment building dedicated entirely to income-restricted housing. The project is located on a narrow residential parcel just south of Olympic Boulevard and is advancing through the Los Angeles Department of City Planning review process.
The proposal would deliver 42 apartments, consisting of one- and three-bedroom units, all reserved for qualifying households. No on-site vehicle parking is included in the plan, a design choice reflected throughout the site layout and building organization. The project is seeking approvals through the Citywide Housing Incentive Program, which allows increased residential capacity in exchange for long-term affordability covenants.

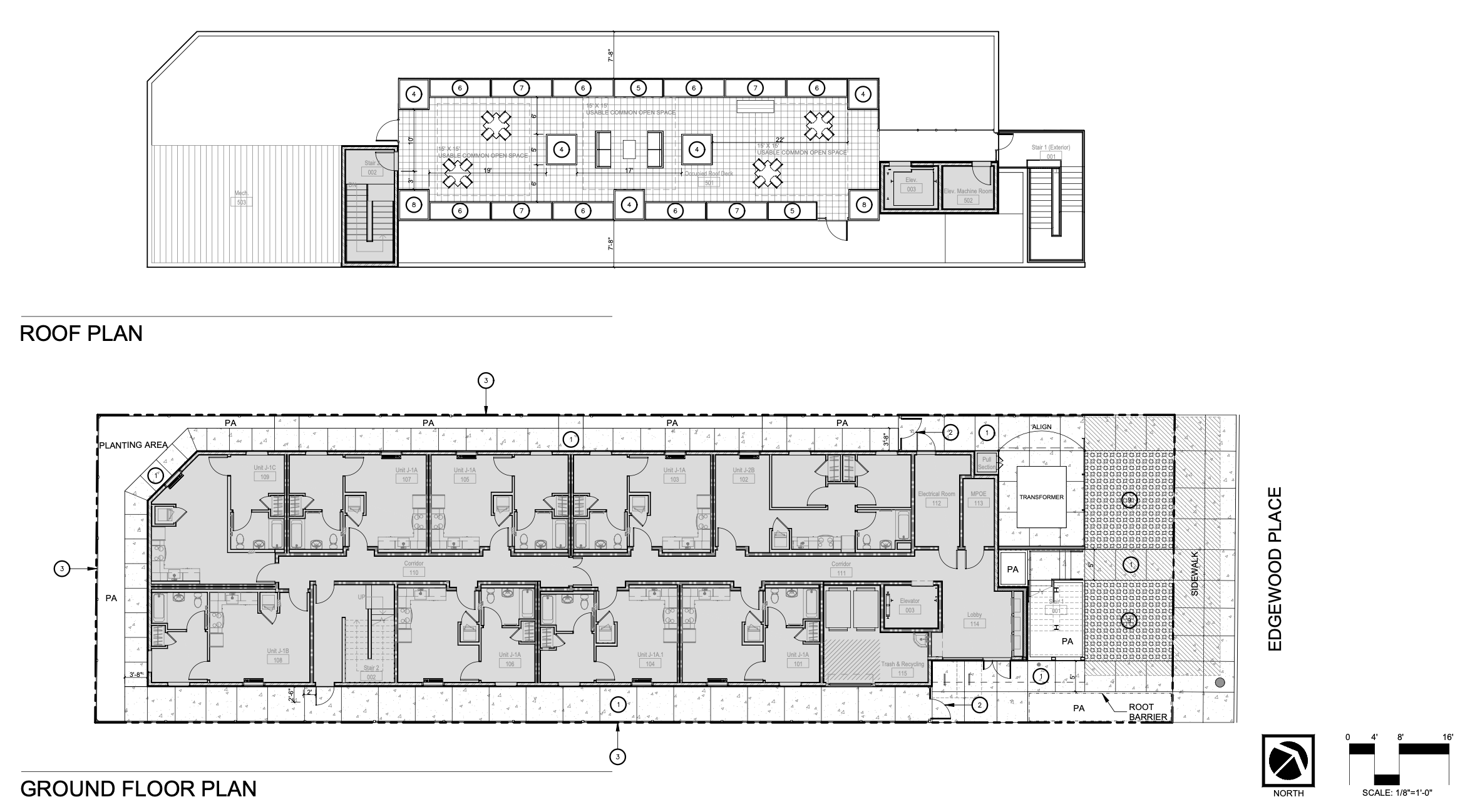
4532 West Edgewood Pl Plans via Open Office
Architectural plans prepared by Open Office depict a compact, rectilinear structure organized across four residential floors above a ground level that accommodates building entry, circulation, and service functions. Floor plans show double-loaded corridors serving efficiently arranged units, with setbacks and lot-line conditions shaping the building’s footprint along the edges of the site.
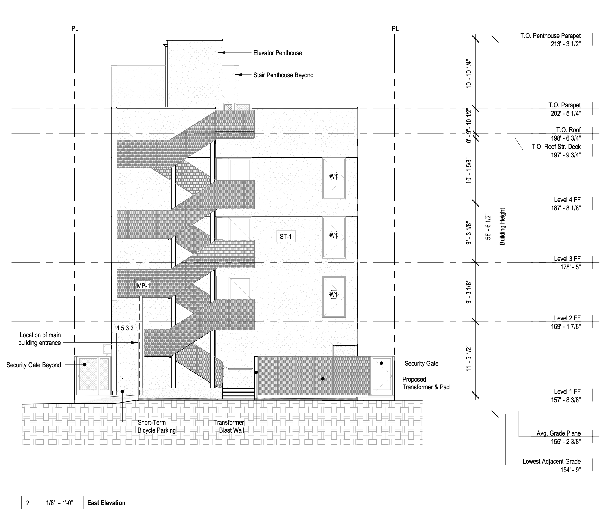
Elevations illustrate a restrained exterior composed of light-toned wall surfaces, vertically aligned window openings, and minimal articulation, consistent with a cost-conscious affordable housing program. Balconies are absent, with outdoor space instead consolidated at the roof level. Stair and elevator cores are expressed as simple vertical volumes, maintaining a clear reading of the building’s internal organization.

4532 West Edgewood Pl East Elevation via Open Office
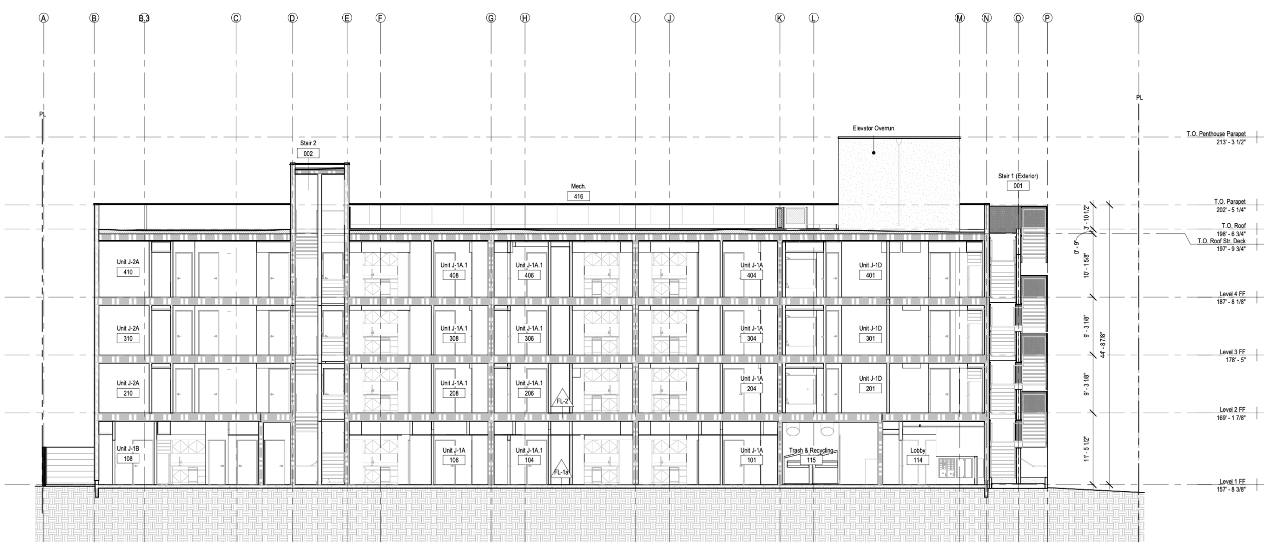
The roof plan shows a shared open-air amenity deck designed as common space for residents, incorporating seating areas and landscaped zones set behind the parapet line. Mechanical equipment and circulation elements are grouped to preserve usable outdoor space while maintaining compliance with height and setback requirements visible in the section drawings.

4532 West Edgewood Pl Section via Open Office
The project is being developed by an entity affiliated with Avenue Homes, with landscape design by Savage Land Design. As proposed, the development advances as a purpose-built affordable housing project, with its massing, circulation, and amenity layout closely aligned to the constraints and opportunities of the Edgewood Place site.
Subscribe to YIMBY’s daily e-mail
![]()
Follow YIMBYgram for real-time photo updates
Like YIMBY on Facebook
Follow YIMBY’s Twitter for the latest in YIMBYnews






Be the first to comment on "Mid-Block Four-Story Housing Project Planned for 4532 West Edgewood Place"