A large mixed-use project is being pursued at the Centro Westlake site in Los Angeles, where new construction is planned in direct coordination with the Westlake/MacArthur Park Metro Station. The proposal centers on reorganizing the station environment through new building construction, upgraded public space, and improved pedestrian circulation across the block.
Skidmore, Owings & Merrill (SOM) is responsible for the designs. Walter J. Company is the project developer.

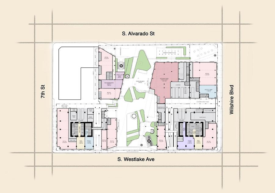
Centro Westlake Site Plan via SOM
The site spans a full city block bounded by Wilshire Boulevard, South Alvarado Street, 7th Street, and Westlake Avenue. Plans introduce a network of pedestrian pathways anchored by a central open-air plaza extending across the site. This space is designed to connect station access points with surrounding streets, while accommodating gathering areas, circulation routes, and activity zones tied to transit use. The development is a joint effort between LA Metro and the Walter J. Company, combining transit infrastructure with new mixed-use construction.

Centro Westlake 2 via www.centrowestlake.com
The plan introduces a pair of high-rise buildings above a shared base, arranged to frame the central open space and define the edges of the site. Renderings indicate towers rising to approximately 39 and 55 stories, with the tallest portions reaching roughly 600 feet. The massing separates the buildings into distinct vertical elements while maintaining visual and physical connections across the plaza below.

Centro Westlake View via SOM
The development brings together multiple uses within a single integrated complex. Plans include 668 residential units, with a portion reserved as income-restricted housing, alongside a 300-room hotel. Office space totaling more than 100,000 square feet and additional medical office space are also included, along with over 50,000 square feet of retail uses distributed along the ground level and internal circulation areas.

Centro Westlake Street View via SOM
At grade, the project emphasizes active uses that engage both transit riders and the surrounding neighborhood. Retail storefronts, vendor-oriented spaces, and food and beverage areas are positioned along the central plaza and adjacent walkways. Project information also highlights the inclusion of cultural programming and community-serving resources, reinforcing the role of the site as a destination beyond its transportation function.

Centro Westlake Site via www.centrowestlake.com
Parking would be accommodated within a multi-level structure integrated into the podium, with access points designed to minimize conflicts with pedestrian movement at street level. The overall plan combines vertical density with transit access and public space improvements, consolidating multiple urban functions within a single site in the Westlake area.
The estimated construction timeline has not been revealed yet.
Subscribe to YIMBY’s daily e-mail
![]()
Follow YIMBYgram for real-time photo updates
Like YIMBY on Facebook
Follow YIMBY’s Twitter for the latest in YIMBYnews






The project won’t achieve anywhere near to its full potential without taming the car sewer of adjacent Alvarado Street. Otherwise this is just another mall with some apartments up top.
Please send me more information regarding the affordable apartment.
Thanks investjoy1234@yahoo.com