A large mixed-use residential complex organized around a series of internal courtyards is nearing completion at 1457 North Main Street in Chinatown, bringing hundreds of compact apartments and ground-floor commercial space to a site just east of Los Angeles State Historic Park. The development occupies a long parcel stretching between North Main Street and Sotello Street and introduces a mid-rise housing cluster centered on shared outdoor spaces.
The project is being developed by Thrive Living, with The Architects Collective serving as architect.

1435-1465 North Main Street First Floor Plan via The Architects Collective
Plans call for a six-story residential structure containing 376 studio and one-bedroom apartments arranged above 6,448 square feet of ground-floor commercial space. Retail and restaurant spaces are positioned along the Main Street frontage, while interior circulation corridors lead to landscaped courtyards and communal gathering areas embedded within the building footprint.
The site plan organizes residential wings around multiple open-air spaces, including a rear courtyard designed as an outdoor gathering area and additional smaller patios distributed through the ground level. These shared spaces connect to interior amenities such as a fitness center, recreation rooms, and collaborative work areas intended to support residents within the dense urban site.

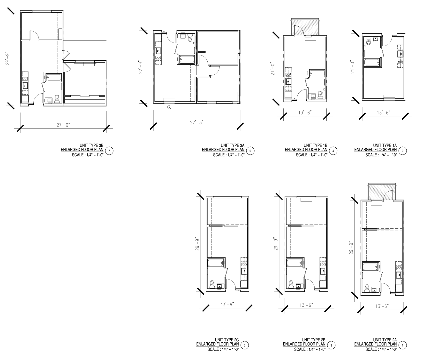
1435-1465 North Main Street Unit Layouts via The Architects Collective
Construction of the complex relies on prefabricated modular residential units, which are manufactured off-site and assembled into the six-story structure during construction. Unit layouts emphasize compact living configurations suited to studio and one-bedroom residences, allowing the project to accommodate a large number of apartments within the building envelope while maintaining consistent interior floor plans.

1435-1465 North Main Street via The Architects Collective

1435-1465 North Main Street Construction Site via Google Maps
As part of the project approvals, 42 apartments will be reserved as extremely low-income affordable housing. The developer has also indicated that the remaining units are expected to be marketed toward renters earning moderate incomes relative to the region’s Area Median Income.

1435-1465 North Main Street Rear Courtyard via The Architects Collective
When complete, the development will include 82 parking spaces in addition to bicycle parking and pedestrian-oriented commercial frontage. The project forms part of a broader wave of new residential construction occurring along the northern edge of Chinatown, where underutilized industrial and commercial properties are increasingly being redeveloped with higher-density housing.
Subscribe to YIMBY’s daily e-mail
![]()
Follow YIMBYgram for real-time photo updates
Like YIMBY on Facebook
Follow YIMBY’s Twitter for the latest in YIMBYnews






Be the first to comment on "Mixed-Use Courtyard Housing Development Advances at 1457 North Main Street in Chinatown"