A new multi-family residential development is proposed at 1727 North Kenmore Avenue in Los Feliz, where plans submitted to the Los Angeles Department of City Planning call for the demolition of an existing single-family residence and the construction of a three-story apartment building. The project site sits just north of Hollywood Boulevard within walking distance of Barnsdall Park.
The proposal, filed by Commun, would introduce a total of nine residential units, including eight primary apartments and one accessory dwelling unit. Plans indicate a mix of two- and three-bedroom layouts, with one unit designated for extremely low-income occupancy, allowing the project to utilize development incentives permitted under current city regulations.

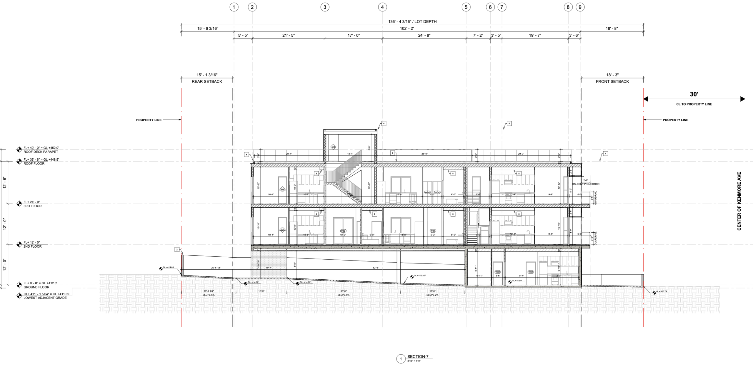
1727 North Kemmore Avenue Section 1 via Commun
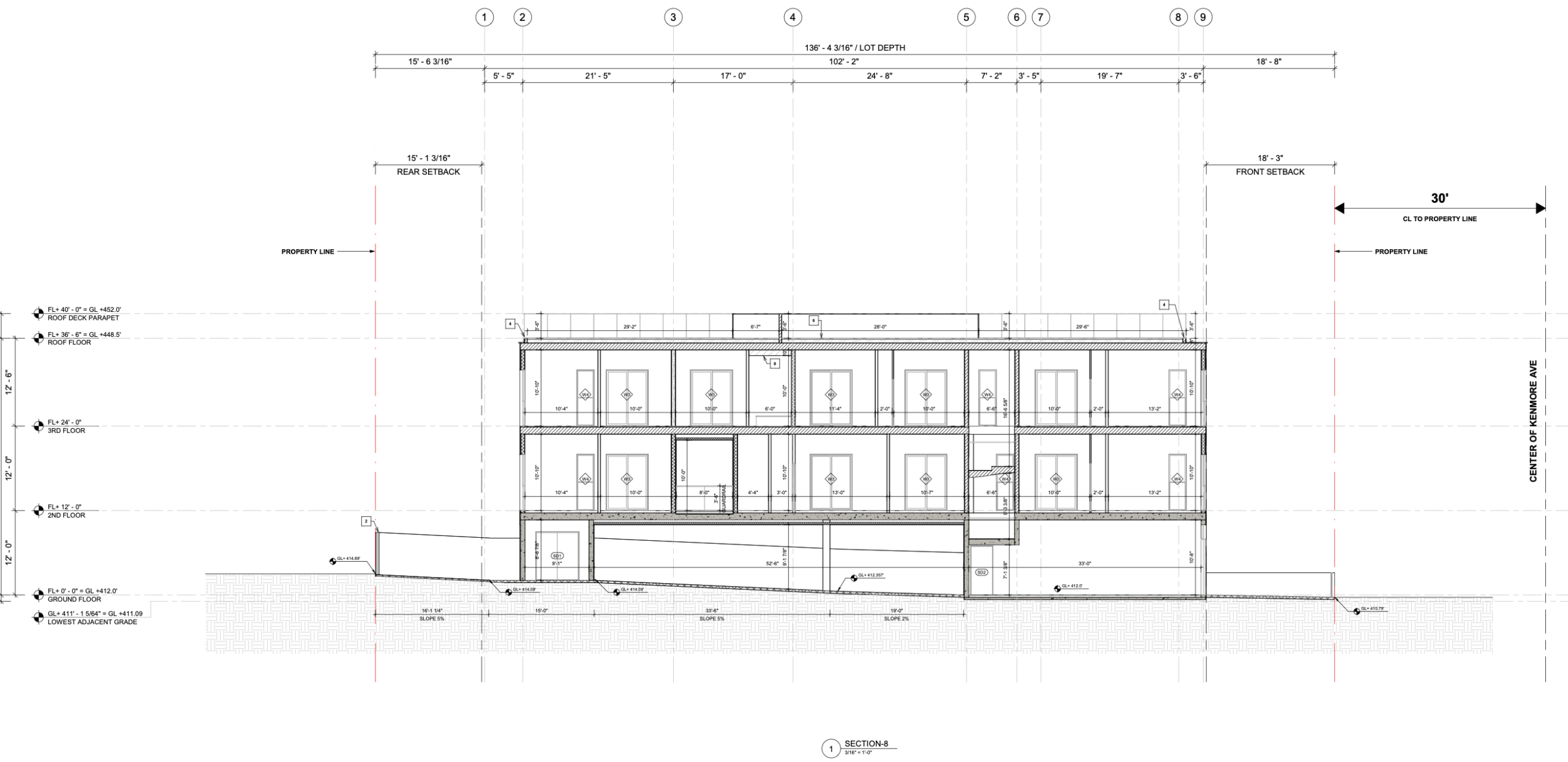
Drawings reveal that the building’s organization is shaped by the site’s natural slope, with the structure stepping along the grade rather than presenting a uniform ground plane. Section views show a partially recessed lower level that accommodates parking and building services, while upper floors align with the changing elevation across the lot. This approach results in a split-level condition at the base, reducing the visual height along portions of the frontage while maintaining three full stories of residential space above.
The residential floors are arranged around a central vertical circulation core, with units distributed in a linear configuration across each level. Repetitive stacked layouts suggest an efficient plan organization, while deeper unit footprints correspond to the larger two- and three-bedroom configurations described in the application materials.

1727 North Kemmore Avenue Section 2 via Commun
A rendering of the proposed building depicts a contemporary low-rise structure defined by a rectilinear massing and a restrained palette. The exterior features smooth wall planes punctuated by vertically oriented window openings and projecting balconies. A material shift at the ground level differentiates the base from the upper stories, reinforcing the building’s relationship to the sloped site. Plans also indicate the inclusion of a rooftop deck.
The project site is located in a residential portion of Los Feliz that has seen incremental infill development in recent years, particularly along nearby Hollywood Boulevard. If approved, the proposal would replace a single-lot residence with a compact multi-family building that reflects the site’s topography while introducing additional housing within walking distance of local open space and cultural landmarks.
Subscribe to YIMBY’s daily e-mail
![]()
Follow YIMBYgram for real-time photo updates
Like YIMBY on Facebook
Follow YIMBY’s Twitter for the latest in YIMBYnews






Good start to a building with nice arrangement and variety of windows. Gray color is dated as is the plank wood walls and fencing which quickly discolor. This could have really been something with a little more detailing such as a cornice or nostalgic name of the building or metal sunburst in the blank bay on the facade. CALYIMBY knows aesthetics matter, the architect should know too.