A modest infill project is moving through Los Angeles planning at the corner of North Martel Avenue and West Fountain Avenue, a short walk east of Fairfax at t 1302-1308 N. Martel Avenue and 7317 W. Fountain Avenue in Hollywood. Developer Generation Real Estate Partners proposes to clear three aging cottages and raise a five-story, 47-unit building designed by Kevin Tsai Architecture.
Drawings submitted to the City show a slim, L-shaped volume that wraps a central courtyard and steps back to make room for a furnished roof deck. Homes would come in studio, one-, two-, and three-bedroom layouts—densities made possible by the Transit Oriented Communities program. In exchange for those height and floor-area bonuses, six apartments are reserved for households earning no more than 50 percent of area median income.

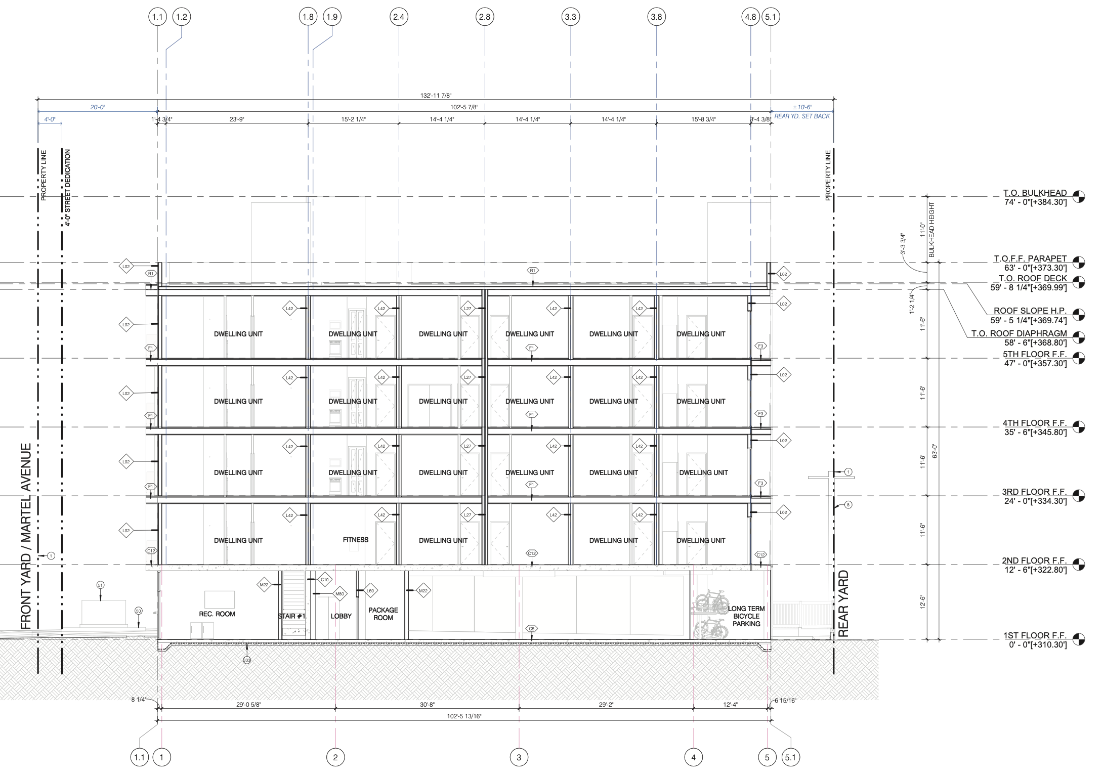
1308 North Martel Avenue Section via Kevin Tsai Architecture
Parking is limited: a single ramp off Martel would drop to a semi-subterranean garage with 16 spaces, or about one stall for every three apartments. Bicycle storage and a package room line the back of the lobby; a small lounge opens onto the courtyard.
Exterior finishes lean contemporary—a light stucco base capped by darker upper floors, framed metal balconies, and planted screen panels at each stair core. Street trees along Fountain stay in place, and new shade trees are planned inside the courtyard.
Permits list the project site at just under half an acre, keeping the footprint tight and massing low compared with recent projects on nearby Sunset. If approvals fall into place this winter, demolition could start in 2026, putting new residents on-site roughly two years later.
Subscribe to YIMBY’s daily e-mail
![]()
Follow YIMBYgram for real-time photo updates
Like YIMBY on Facebook
Follow YIMBY’s Twitter for the latest in YIMBYnews






I would like to be considered for low income citizens program
Or.for tax credit program for seniors