https://la.urbanize.city/post/mixed-use-project-pitched-6727-w-melrose-ave-hollywoodCity officials have cleared the way for a new six-story mixed-use development at 6727 Melrose Avenue in Hollywood. The project will rise on the site of a vacant commercial structure, bringing new housing and retail space to the busy corridor.
Vitruvian is serving as the developer, with architecture led Tighe Architecture.

6727 Melrose Avenue via Tighe Architecture
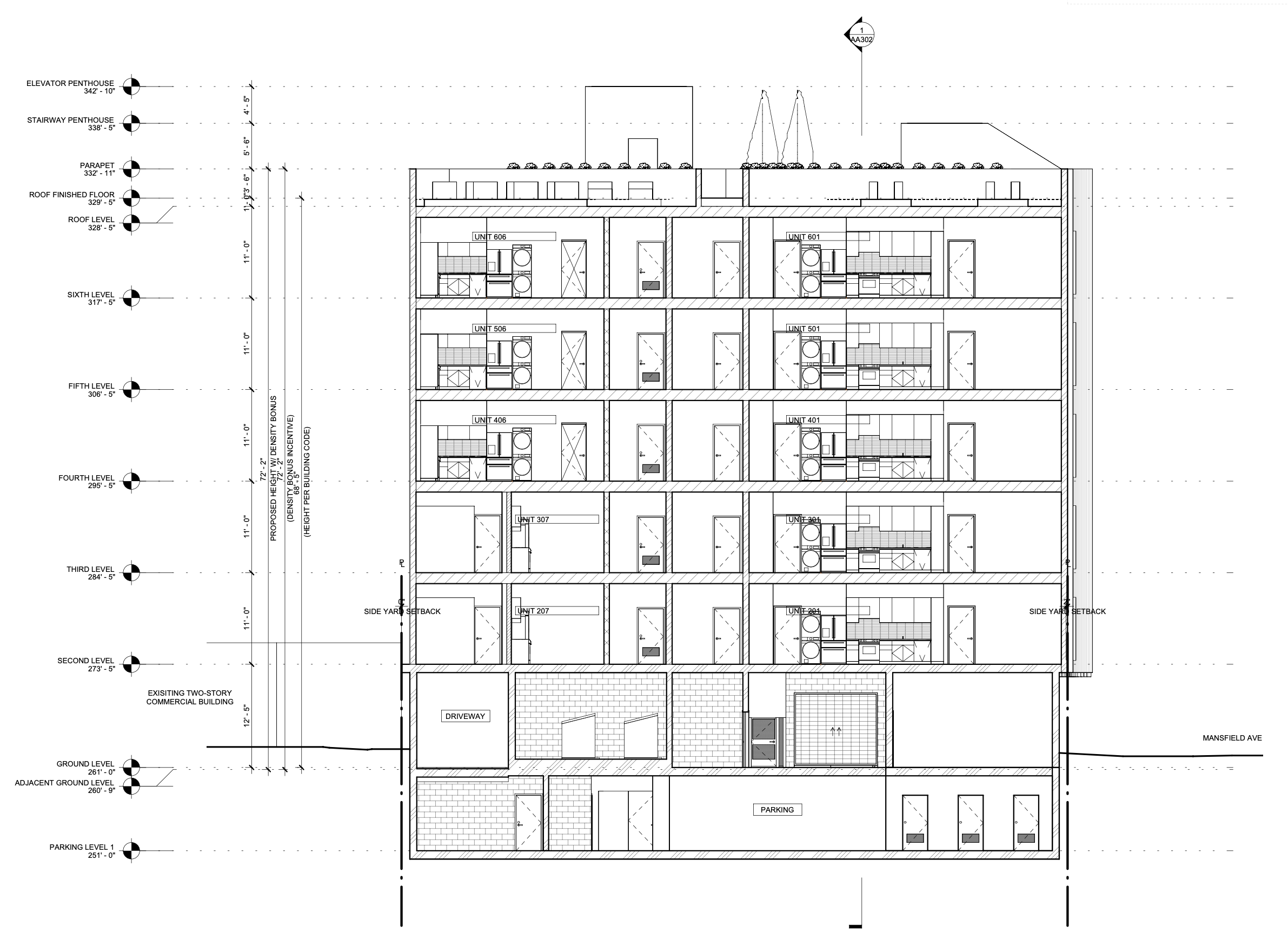
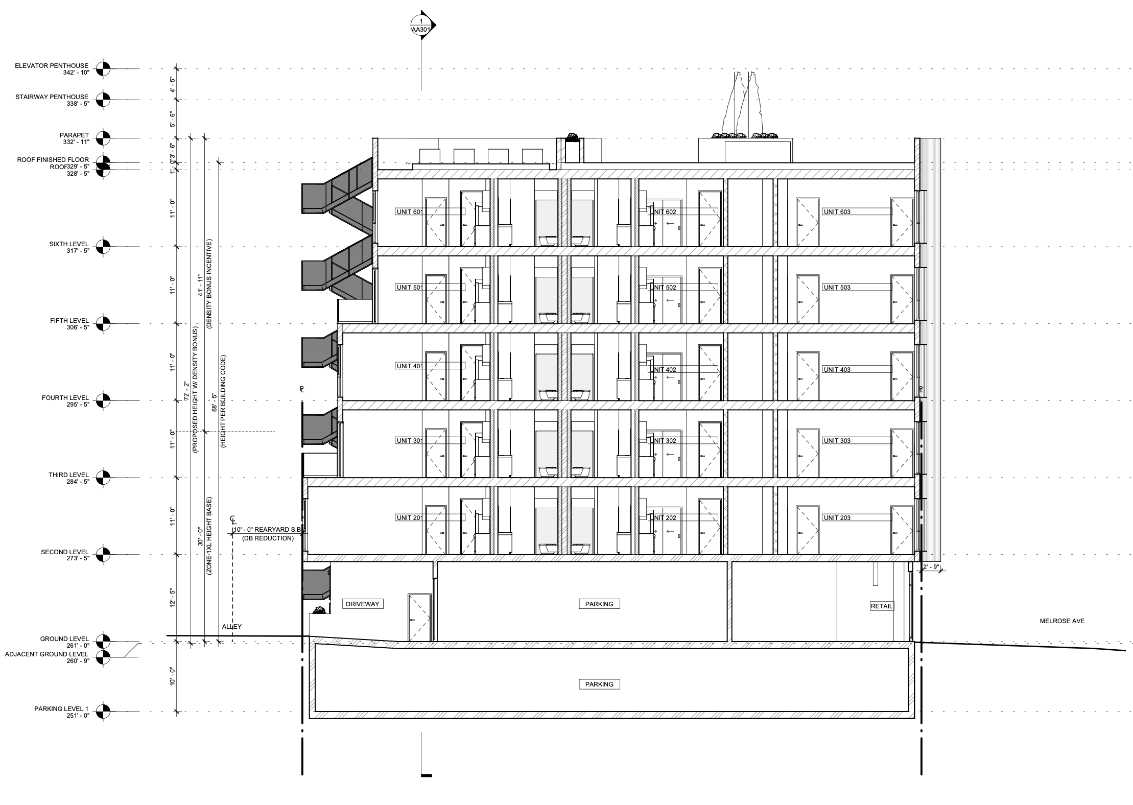
The building is planned to hold 32 apartments in total. Of these, four will be set aside as very low-income affordable units, while the balance includes 27 market-rate residences and one manager’s unit in compliance with the state’s density bonus program.
Most of the homes will be one-bedroom layouts. Plans specify 30 one-bedroom apartments averaging 781 square feet, along with two studio units averaging 494 square feet.
At the street level, the project will add 605 square feet of commercial space. Renderings show the storefront wrapping the corner of Melrose and Mansfield, designed to activate the pedestrian experience.

6727 Melrose Avenue Section 1 via Tighe Architecture
Parking will be provided in a single subterranean level with space for 23 vehicles. The project also includes 30 long-term and three short-term bicycle parking stalls, exceeding city requirements even though state law waives parking minimums for the site due to its proximity to major transit.
The City Planning Commission granted several density bonus incentives, allowing the structure to reach six stories and 72 feet in height with a floor area ratio of 4.06:1. Reductions to required yard setbacks were also approved. However, commissioners declined a request to forgo sidewalk improvements along Melrose, requiring the developer to complete the public-realm upgrades.

6727 Melrose Avenue Section 2 via Tighe Architecture
The revised design presents a crisp modern profile, with sculpted white façades defined by corrugated vertical panels and recessed box windows. The new look is a departure from the earlier 2024 version, which featured a more conventional contemporary treatment.
Residents will have access to amenities on a rooftop deck that doubles as the project’s open space. The roof plan offers 3,280 square feet of communal outdoor area, slightly exceeding the 3,200 square feet mandated by zoning.

6727 Melrose Avenue Facade via Tighe Architecture
Situated at the intersection of Melrose and Mansfield Avenues, between La Brea and Highland, the site is surrounded by multifamily housing and retail activity. The infill project reinforces the ongoing trend of denser mixed-use development along this stretch of Melrose.
Construction is expected to span roughly 30 months once ground is broken, according to project filings.
Subscribe to YIMBY’s daily e-mail
![]()
Follow YIMBYgram for real-time photo updates
Like YIMBY on Facebook
Follow YIMBY’s Twitter for the latest in YIMBYnews






Wow! If this gets built what a showstopper! Looks like it should be in Miami.