A new six-story apartment building is planned at 2669–2675 S. Redondo Boulevard in West Adams, Los Angeles. The infill project would replace low-scale lots with 23 homes in a mid-rise structure, bringing housing a block south of Adams Boulevard. Hinterland Projects is listed as the applicant/developer, and Warren Techentin Architecture is the designer of record.
The project calls for 23 apartments in a mix that includes studios, one-bedrooms, two-bedrooms, and a single three-bedroom home. Ground level spaces include a glazed lobby and resident recreation room opening toward landscaped planters and the sidewalk. A rear yard is maintained at the back of the lot.

2669 Redondo Boulevard East Elevation via Warren Techentin Architecture
The plans are filed under the City’s Transit Oriented Communities framework; in exchange for the TOC incentives, three apartments are to be deed-restricted for households at the Extremely Low-Income level.
Parking is split between an at-grade podium and one subterranean level, with a single driveway on Redondo leading to about 30 vehicle spaces. Long-term bicycle parking is located within the garage, with short-term racks at street level.

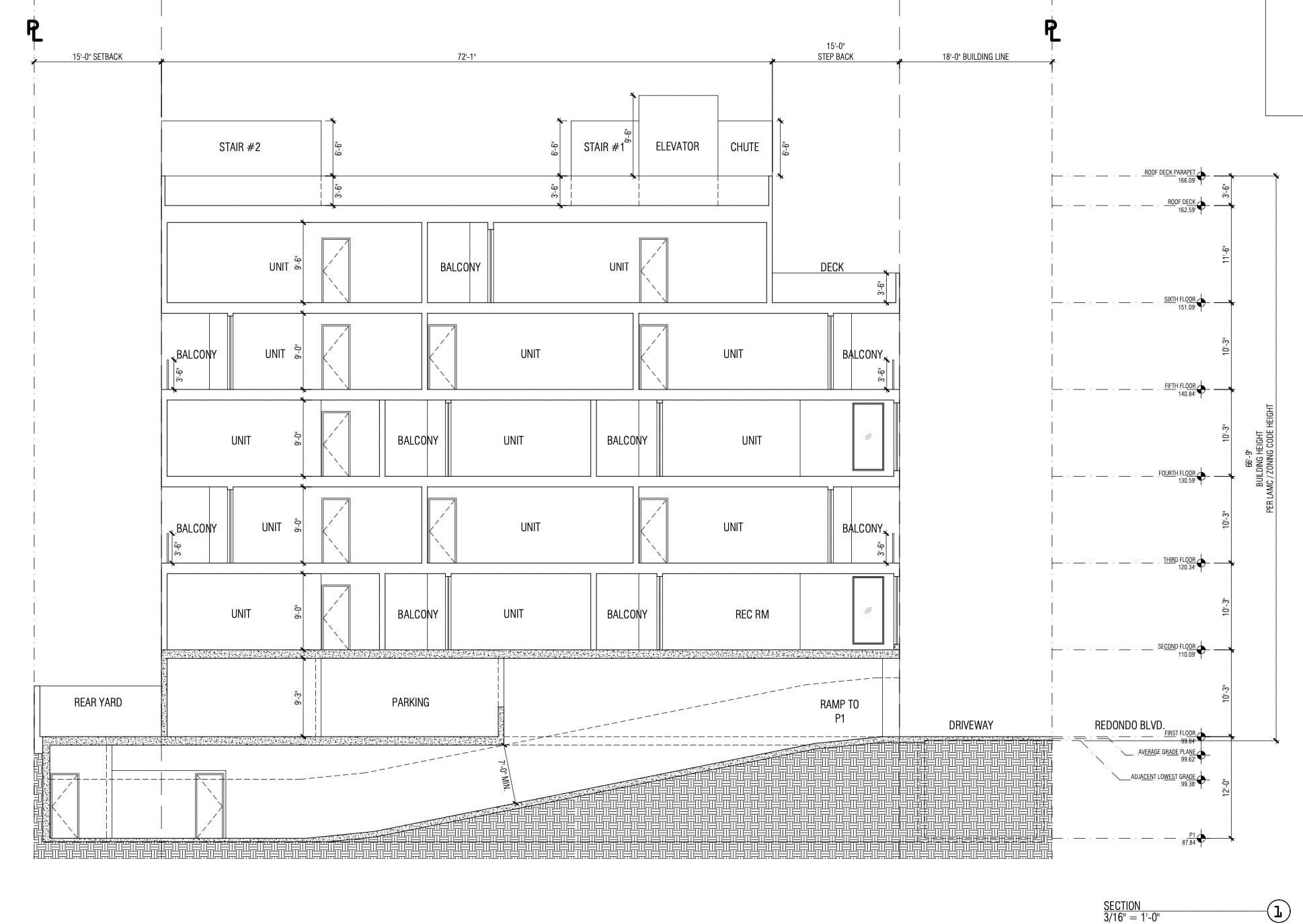
2669 Redondo Boulevard Section via Warren Techentin Architecture
Drawings show a compact footprint organized around a double-loaded corridor, with residential levels stepping back at the top floor to reduce street mass. The exterior pairs smooth white stucco with a darker, ribbed metal volume that frames deeply punched windows and corner bays; warm window surrounds and slim guardrails add texture along Redondo. Private balconies line select units, and a generous roof deck occupies the upper level.
According to the elevation sheets, the building height is roughly 67 feet to the main roof, with a 15-foot stepback at the sixth story and an 18-foot building line along Redondo. Construction is specified as podium over garage with full sprinklers.
Subscribe to YIMBY’s daily e-mail
![]()
Follow YIMBYgram for real-time photo updates
Like YIMBY on Facebook
Follow YIMBY’s Twitter for the latest in YIMBYnews






Be the first to comment on "New 23-Unit TOC Infill at 2669 Redondo in West Adams, Los Angeles"