A small-lot subdivision application has been filed for three adjoining parcels at 3724, 3728, and 3736 North Randolph Avenue in El Sereno. The proposal would divide the 22,474-square-foot hillside site into six individually owned small lots, each developed with a new three-story single-family residence.
The property lies within a designated hillside area. Zoning calculations allow up to seven units based on lot area, though the application proposes six homes. Each dwelling is designed as a Type V-A structure reaching a maximum height of 36 feet.

3724 North Randolph Avenue Section via Warren Techentin Architecture
Section drawings illustrate how the buildings step with the natural grade, which descends across the site. Lower levels are partially embedded into the slope, while upper floors project toward the street. The sectional profiles show a consistent vertical arrangement: garage and entry level at the base, primary living space above, and upper floors opening to rooftop decks. The sloped rooflines follow the terrain, creating a staggered skyline along the hillside.
Floor plans indicate approximately 2,199 square feet of living area per home, excluding stair and garage space. Although no parking is required under AB 2097, the plans provide two garage spaces per residence, for a total of 12 spaces across the development.
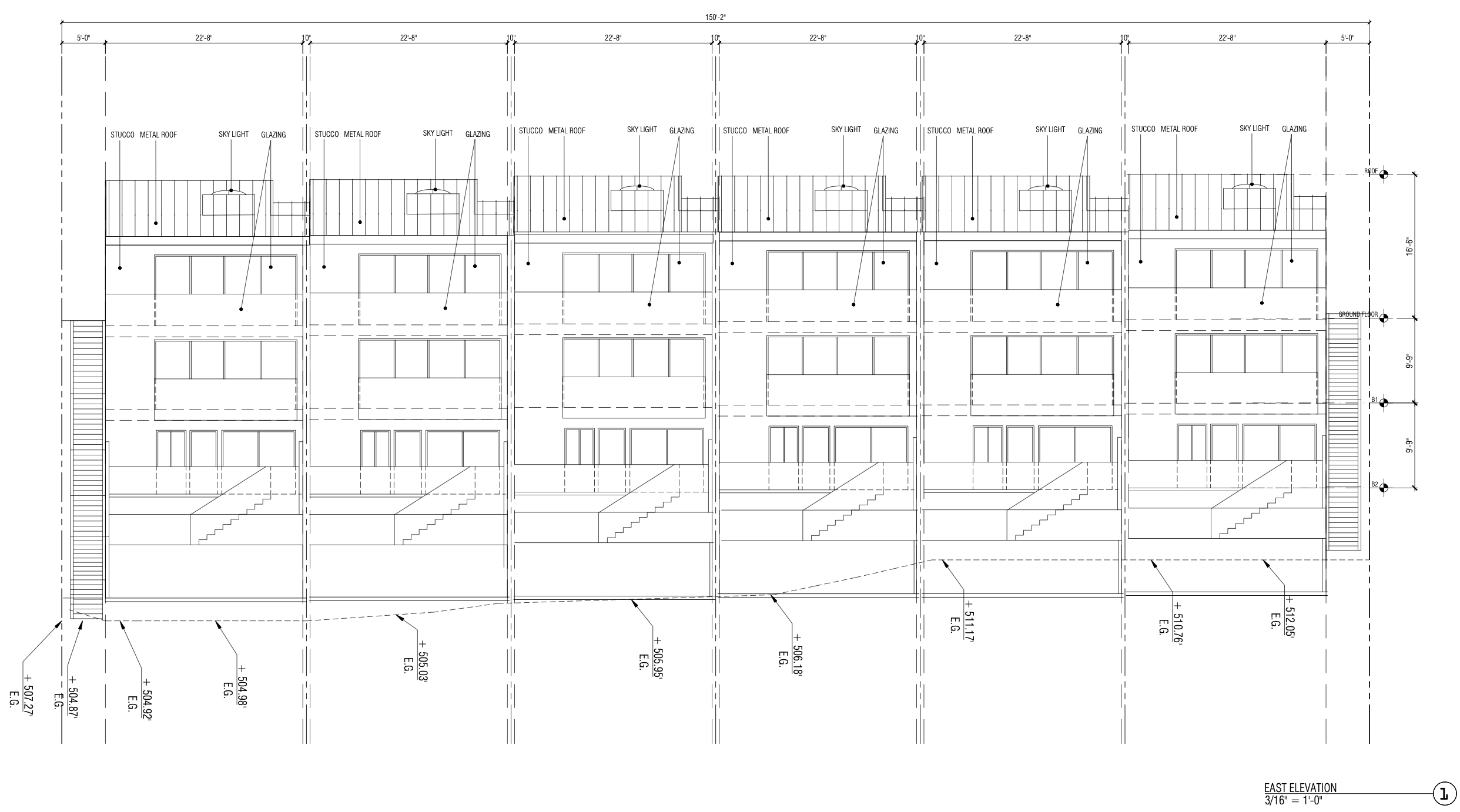
Elevations prepared by Warren Techentin Architecture depict contemporary façades combining smooth stucco, vertical wood siding, metal roofing, colored cement board panels, and expansive glazing. The east elevation shows six vertically aligned volumes separated by narrow offsets, reinforcing the small-lot configuration. Skylights are integrated along the sloped roof planes, and rooftop decks are positioned above the uppermost level.

3724 North Randolph Avenue East Elevation via Warren Techentin Architecture
Setback diagrams indicate a 15-foot front yard, 10-foot rear yard, and five-foot side setbacks consistent with small-lot standards. Proposed building coverage is listed at 39 percent, below the 75 percent maximum permitted.
If approved, the subdivision would reconfigure three hillside parcels into six individually owned homes designed to respond directly to the site’s grade change along North Randolph Avenue.
Subscribe to YIMBY’s daily e-mail
![]()
Follow YIMBYgram for real-time photo updates
Like YIMBY on Facebook
Follow YIMBY’s Twitter for the latest in YIMBYnews






Be the first to comment on "Hillside Small-Lot Subdivision Planned at 3724 North Randolph Avenue in El Sereno"